北京夫妻晒53平小家装修走红,要求很多,预算很少,效果满分
在北京想要拥有一个自己的家,难度还是非常大的,所以很多年轻人在大城市,都是先买一个偏小一点的房子或者公寓。
今天我们要给大家分享的案例就是北京朝阳的一个53平的小家,预算虽然很少,效果却是满分。
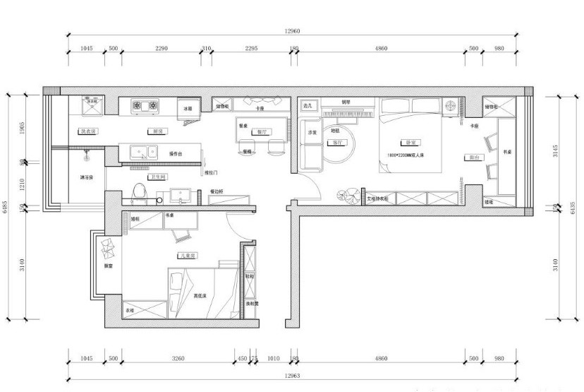
户型图
建筑面积66平,使用面积53平的老公房,改造前是两室一厅一卫,户型其实还是非常好的,南北通透,两边都有阳台。
不过卫生间面积太小,还没有厨房,做饭很不方便。
在设计师的一番改造下,把原来的客厅,变成餐厨一体,并且扩大了卫生间的面积。原来北面的阳台也被一分为二,分别补充卫生间和厨房的空间。
同时把次卧凸出来的空间划给玄关,这样玄关柜的空间就有了。
玄关
利用次卧给出的空间做了一个顶天立地的玄关柜,让原本无处可放的鞋子有了家。
玄关柜里还做了上下两层专门收纳鞋子的,另一边是挂衣区+换鞋凳组合。底部全部抬高,常穿鞋就不会堆在玄关,回家包包外套也能直接挂起来,拖鞋穿鞋都很方便。
玄关柜内,隔板间距较大,用可伸缩的隔板作为收纳补充,增加鞋子的收纳量。
如果需要收纳高帮的鞋子,随时还可以拆卸下来,非常灵活,也可以用在厨房橱柜里。
玄关柜对面是穿衣镜+洞洞板组合,和我们昨天刚发的120平户型的玄关布局几乎差不多。
洞洞板挂小物品、雨伞之类的,穿衣镜在这里,方便出门照镜子,非常完美。
厨房
厨房也是原本客厅的区域,现在变成双一字型厨房,对于如此小的户型来说,已经非常不容易啦!
水槽区这侧,兼顾美观和收纳,常用零碎小物,全用长挂杆壁挂收纳,瓶瓶罐罐放在一侧的双隔板上。
对于家里的五谷杂粮、干货之类的,可以用这种高透明的密封储物罐,拿取方便,一目了然,密封效果还超级好。让厨房更有序又治愈。
下面橱柜安装了嵌入式蒸烤一体箱和洗碗机,蒸烤箱能蒸能烤,做饭省力,洗碗机也解放双手,减少家务负担。
另一侧的灶台区,台面上非常整洁的,做饭用的油盐酱醋各类调料,都用统一的分装瓶装好壁挂在油烟机一侧。锅盖也壁挂起来,不会让做饭的时候手忙脚乱。
从阳台的角度看过去,能看到冰箱是放在灶台这边,离水槽也很近,拿取很方便。
两侧台面空间非常充裕,备菜洗菜一点也不会拥挤。
阳台区域因为离卧室比较远,就双层叠放了洗衣机和烘干机,成为家里的洗衣区,洗衣服在卧室也不会觉得吵。
台面上还放了一些厨房小家电,算是给厨房的收纳做了扩充。
餐厅
餐厅离厨房很近,为了充分压榨空间,在靠近冰箱的地方,还做了一个入墙的高柜。放微波炉以及小家电或者餐具。
餐桌一边是卡座一边是椅子,朋友来做客也能坐得下,卡座下还可以打开做收纳。
空间虽小,可布置上屋主却非常用心,餐桌上用三个高低不同的吊灯,让整个空间超有层次感,还不单调。
卫生间
客厅的另半边,给了卫生间,把原本拥挤的小卫生间变得宽敞很多,门外靠墙一侧,放了一个多层置物架,摆放一些绿植,同时一些小杂物也方便收纳。
进入卫生间可以看到是一个狭长的过道。不过麻雀虽小也五脏俱全,镜柜、洗漱台、浴室柜、马桶样样俱全。
屋主还特意选了宜家的抽屉式浴室柜,下水管靠墙的设计,让两个抽屉都比较完整,收纳也比平开门的普通浴室柜要多得多。
淋浴区也是之前北阳台的一部分,和洗漱区之间有个过渡,所以一点也不拥挤。
阳台改造的淋浴房超级宽敞,算是小户型里最奢侈的空间,也是每天工作后回家能淋掉一身疲惫的地方。屋主在这里没有定窗帘做遮挡,而是直接用了磨砂玻璃,外面看不到,里面却十分通透,让整个空间都沐浴在大自然里。
客厅
前面说了,原来的客厅给了厨房和餐厅,本来没有客厅的,不过考虑到日常总要有个休息的地方,于是就在卧室里打造一个小客厅或者说是休闲区。
摆放一个双人沙发+屋主喜欢的钢琴,即便空间不大,也尽量满足自己的爱好。
墙面的是粉色+灰色,室内的布置基本都是白色,让小户型减少笨重的压抑感。
沙发前放一个小圆桌作为茶几,随时都能移动,沙发背后的墙面用两层隔板,来收纳自己喜欢的摆件,并且固定了一个投影仪。
平时休息的时候可以在这里看喜欢的电影超级爽,家里来朋友,也可以一起看剧,很舒适~
卧室
休息区的另一边,就是卧室了,金属床和金属的分子灯非常搭。
卧室除了一张窗外,还有超级无敌长的衣柜,里面用宜家艾格特来布局收纳。
有了它,家里一年四季的衣服,都不怕没地方放啦!
书房
卧室的阳台,被改造成书房,放一个2米长的工作桌,可以同时坐两个人一起办公。
侧面正好放得下宜家的书柜,这也是意外之喜。窗户用香格里拉帘做遮光,比布艺的窗帘要出彩。
让室内光线柔和很多,书房格调瞬间提升。书桌右边是花架和小晾衣架,因为有烘干机,需要晾晒的衣服很少,所以占用的阳台空间有限。
儿童房
次卧的儿童房,放了一个高低床,算是充分利用了垂直空间。
再加上一个大飘窗,基本的功能足够了,后面再增加一个衣柜和小朋友用的桌椅,就比较完整了。
推荐阅读:中华企业新闻网
滚动内容
- 
北京夫妻晒53平小家装修走红,要求很多,预算很少,效
家居 · 2020-09-09
 - 
晒我装修了一年的小家,效果很漂亮,通风完就入住了
家居 · 2020-09-09
 - 
别人家早就不装榻榻米了,现在都流行这样
家居 · 2020-09-09
 - 
这栋三层英式别墅,处处都是有仪式感的生活细节
家居 · 2020-09-09
 - 
为什么不把阳台围满户型?外面一圈阳台多舒服啊
家居 · 2020-09-09
 - 
她家飘窗这样装,客厅宽敞许多,吧台隔断餐厅和厨房,太
家居 · 2020-09-09
 

